Architectural Drawings

National Geographic Sea Bird

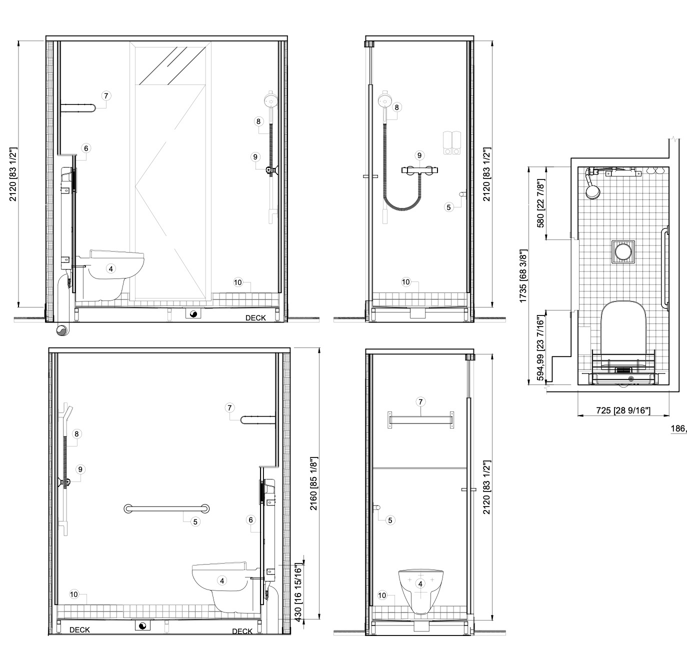
in 2019 we had the opportunity to work in the exploration ship called Sea Bird in the project development for the cabins refitting. "The ship is designed to navigate narrow inlets and wildlife-rich passageways inaccessible to larger ships". The project consisted of the refitting of 8 out of the 31 passenger cabins, proposing the new layout for the bathroom accommodations and ocean view cabins distribution.